NIR光谱仪

Explorer NIR, 512pixels InGaAs近红外光谱仪

Explorer NIR-512

Explorer NIR-512

Explorer NIR-512近红外光谱仪设计采用了滨松Hamamatsu非制冷型512 pixels InGaAs感测器以及优化的光机平台,使得最高光学解析度优于1nm,非常适用于近红外LD光源的检测。该系列光谱仪光学平台采用了可更换狭缝设计,一台光谱仪可以配置多种不同宽度的狭缝以满足不同解析度和感度的光谱测量需求。体积小,非常适合于近红外LD检测、食品检测、生物制药和科学研究以及工业整合等领域。

产品优势:
  • 使用滨松Hamamatsu 512pixels 的非制冷型InGaAs感测器,最高解析度达~1.0nm。
  • 紧凑型的光路与结构设计,适合于系统整合。
  • 具备可更换式的狭缝设计,可搭配不同规格的狭缝,使用者可以选择不同解析度及灵敏度,满足实验的需求。
  • 可客制波长范围和解析度,配置适合的光谱范围和解析度。
  • 专业的量测软体,提供吸光度/穿透率/浓度/反射率/时序监控等测量功能。
产品应用:
  • 近红外LD光源光谱的测量
  • 食品和农业的检测,例如蔬菜瓜果的甜度和新鲜度检测;肉类的脂肪和蛋白质检测;谷物和种子的水分检测等
  • 油料的成分分析
  • 生物制药线上监测和过程分析
  • 塑胶分选

基本预设规格

Model Wavelength Range Resolution Slit Grating
Explorer NIR-512pixels 920-1700nm ~3.0nm 25um 1000g/mm, 1310nm, 16bit AD
Explorer NIR-512pixels 1500-1680nm ~0.8nm 25um 300g/mm, 1200nm, 16bit AD

*可客制其它波长范围与解析度。
*部分型号可加柱状透镜,以提升光谱仪的感度。

规格表

型号 Explorer NIR-512
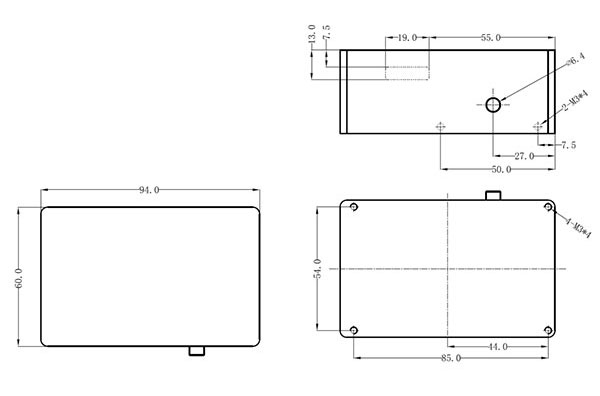
尺寸 94 mm×60 mm×36.5 mm
重量 0.3 Kg
感测器 滨松G9204 InGaAs CCD
512像素,像素尺寸:25 ×500 µm
波长响应:920-1700nm
A/D 16bit
信噪比 16666:1
动态范围 16666:1
积分时间 0.1ms-65s
通讯介面 Mini USB2.0(12Mbps)
RS232(115200bps)
功耗 5 VDC,250mA
供电方式 USB
光谱范围 由具体的光栅而定
解析度 优于1nm(由光栅和狭缝共同决定)
触发方式 普通工作模式(正常工作模式),软体触发,硬体触发,同步触发,触发输出
作业系统 Win XP, Win7,Win8, Win10, Win11
光纤连接器 SMA905
外壳固定孔位 底部4个M3×4螺纹孔,侧面2个M3×4螺纹孔
工作温度 (推荐温度) 5℃ -35℃(推荐温度25℃)
型号 规格描述
Explorer NIR-512-1516 波长范围:1500nm-1680nm,解析度:~0.8nm,狭缝:25微米,光栅:1000lines/mm,1310nm,16位A/D
Explorer NIR-512-9217 波长范围:920nm-1700nm,解析度:~3nm,狭缝:25微米,光栅:300lines/mm,1200nm,16位A/D

测试数据

标准汞氩灯量测光谱

标准氙气灯量测光谱

光谱仪尺寸图

  • 地址:苏州常熟经济开发区四海路11号
  • 电话:()0512-51910068
  • 传真:()0512-51910068
  • E-mail:18900616086@163.com